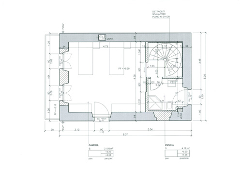
014 Trasformazione rustico nel nucleo di Cugnasco

  <    >
Progetti | Studio